Коммерческое помещение 75,3 м² в аренду
| Населенный пункт | городской посёлок Назия |
|---|---|
| Улица | проспект Школьный |
Описание
ID 2867
Коммерческое помещение 75,3 м² в аренду — Назия, проспект Школьный, 19В
Адрес: Ленинградская область, г.п. Назия, пр. Школьный, д. 19В
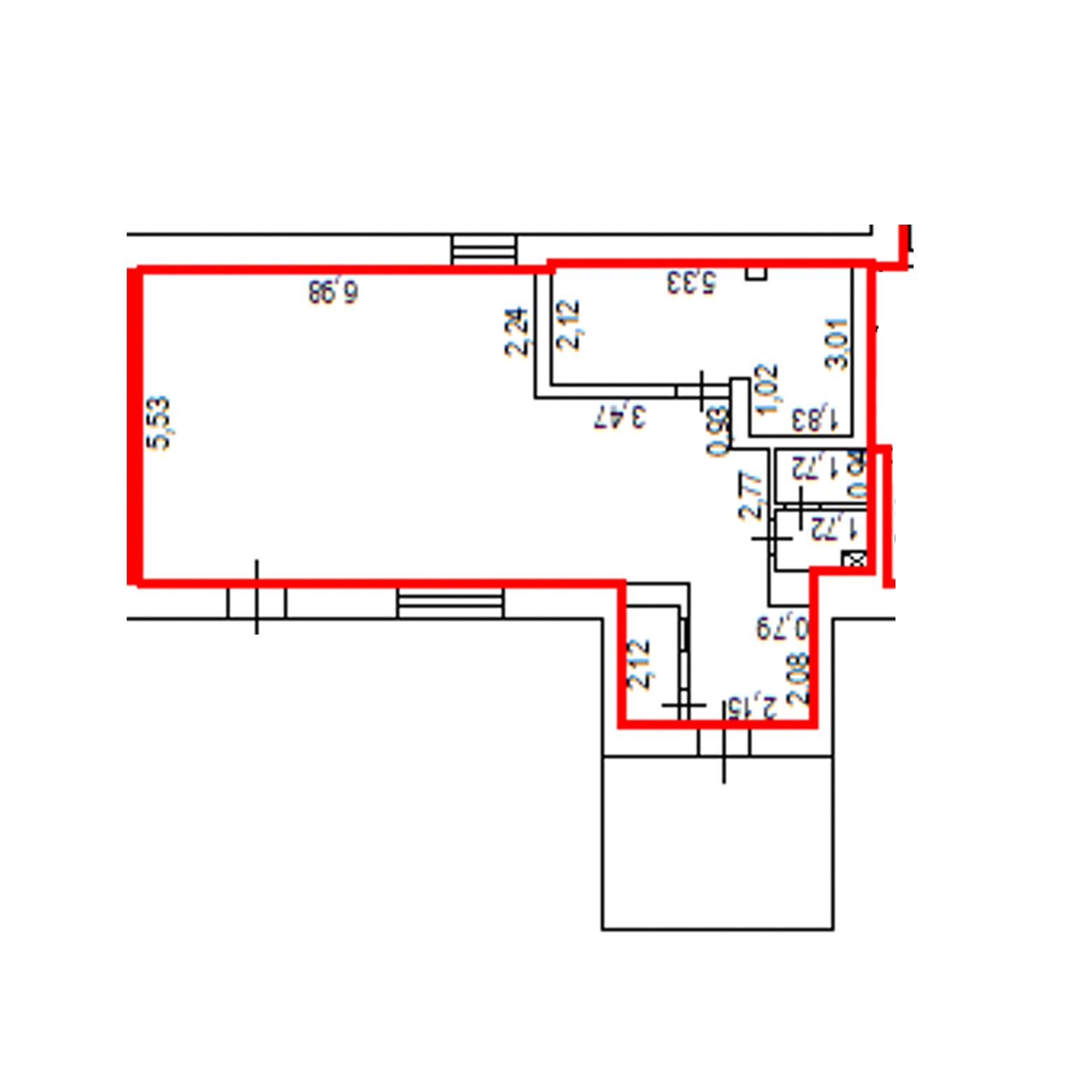
Площадь: 75,3 м²
Электрическая мощность: 35 кВт
2 отдельных выхода
Санузел в помещении
С ремонтом — вложений не требует
Помещение под кухню (без общепита поблизости)
Этаж: 1 / 1
Назначение: универсальное — общепит, торговля, офис, услуги, пункт выдачи, салон, аптека, студия, склад-магазин, мастерская и др.
Описание объекта
В аренду предлагается готовое коммерческое помещение площадью 75,3 м² на первом этаже одноэтажного торгового комплекса по адресу: г.п. Назия, проспект Школьный, дом 19В.
Помещение имеет два отдельных входа, выполнен современный ремонт, большие вложения не требуются.
В наличии санузел и помещения под кухню или подсобную зону — удобно для организации любого вида деятельности.
Выделенная мощность 35 кВт позволяет использовать профессиональное оборудование.
Инфраструктура и расположение
Помещение находится в центральной части поселка Назия (Кировский район Ленинградской области).
Рядом — жилые дома, магазины, аптеки, банковские отделения, остановки общественного транспорта, обеспечивающие стабильный пешеходный и автомобильный трафик.
До железнодорожной станции Назия — около 5 минут на автомобиле,
до трассы Кола — 15 минут, удобный выезд на Шлиссельбург и Кировск.
В шаговой доступности — продуктовые магазины, салоны связи, офисы услуг, но в окресностях отсутствует общепит, что создаёт свободную нишу для арендатора (при необходимости можно предусмотреть зону кафе или кулинарии).
Преимущества помещения
• Готовое к эксплуатации, без вложений
• Высокая выделенная мощность — 35 кВт
• 2 отдельных выхода (удобно для клиентов и персонала)
• Современный ремонт
• Возможна гибкая планировка
• Подходит под любые виды деятельности
• Первая линия и удобный подъезд
• расположено в 30 метрах от входа в Магнит, на пути следования 1 200 1 500 потенциальных покупателей в день. Идеально подойдет под мясной магазин или магазин полуфабрикатов, дополняющий ассортимент Магнита.
Контакты
Для уточнения условий аренды и просмотра помещения — звоните!
Просмотры — по предварительной договоренности.
| Сведения о недвижимости | |
|---|---|
| ID | 2867 |
| Коммунальные услуги включены | Нет |
| Возможное назначение | Общепит |
| Возможность написать сообщение | Да |
| Сумма залога, руб | 55000 |
| Отчетные документы | Есть |
| Тип здания | Торговый центр |
| Санузел | Совмещенный |
| Тип парковки | На улице |
| Вход cian (avito) | Отдельный с улицы |
| Тип аренды | Прямая |
| Тип сделки авито коммерческая | Продажа |
| Ремонт | Евро |
| Планировка cian | Открытая |
| Помещение занято | Нет |
| Планировка avito | Открытая |
| Отделка помещения коммерческая | Чистовая |
| Право собственности | Собственник |
| Залог (avito) | 1 месяц |
| Способ связи avito | По телефону и в сообщениях |
| Тип недвижимости (Гипернн) | Помещение |
| Состояние cian | Типовой ремонт |
| Ремонт коммерческая | евро |
| Целевое назначение (Гипернн) | пищевое |
| Тип отопления cian | Автономное газовое |
| Тип дома cian | Щитовой |
| Вариант задания цены (avito) | за всё |
| Вариант задания цены (avito) - Аренда | в месяц |
| Дополнительно о парковке avito | Бесплатная |
| Статус готовности | В эксплуатации |
| Удаленность от дороги (авито) | Первая линия |
| Мощность электросети, в кВт | 35 |
| Тип коммерческой | Помещение свободного назначения |
| Площадь, кв.м. | 75,3 |
| Этаж | 2 |
| Этажность | 53 |
| Стоимость | 55 000 руб. |











