Коммерческое помещение 76,1 м² в аренду — Назия
| Населенный пункт | городской посёлок Назия |
|---|---|
| Улица | проспект Комсомольский |
Описание
ID 2868
Адрес: Ленинградская область, г.п. Назия, проспект Кмсомольский, дом 8/1
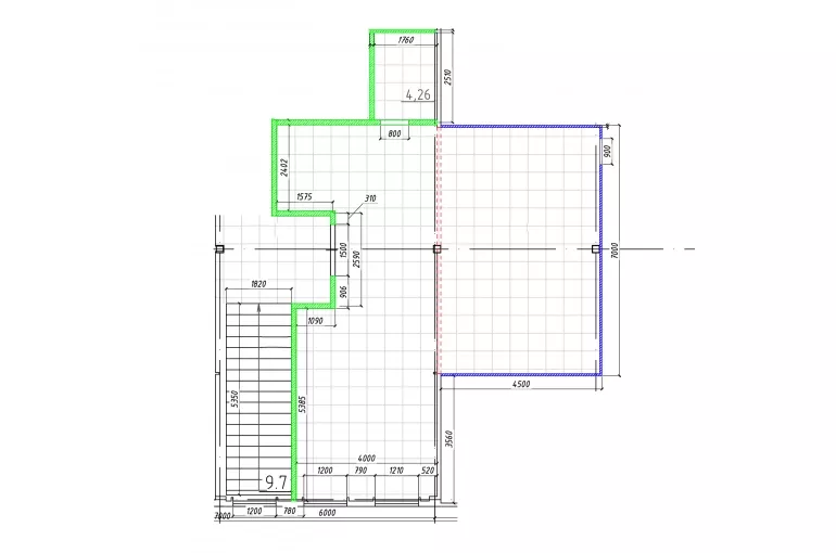
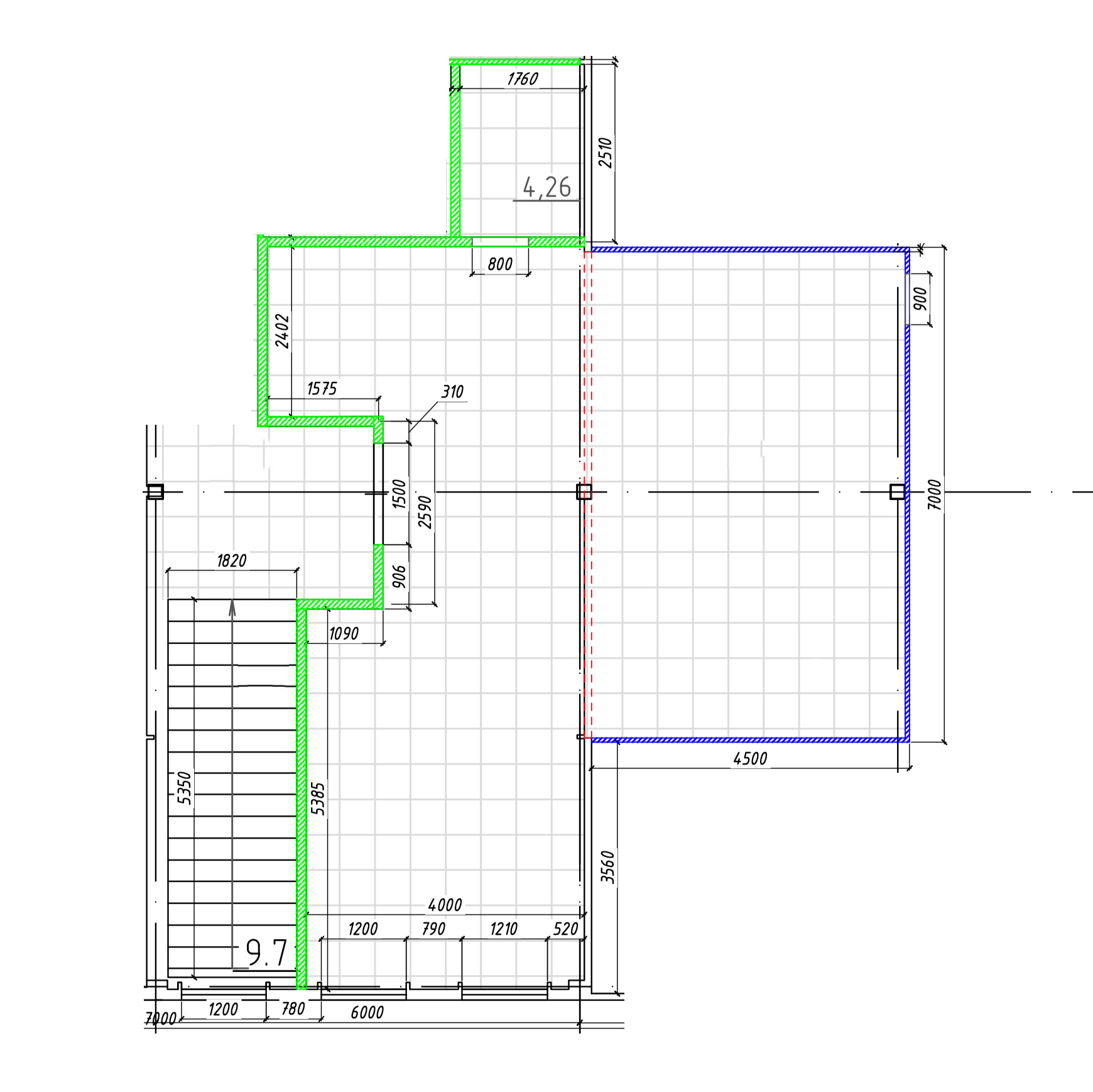
Площадь: 76 м²
Электрическая мощность: 20 кВт
Санузел в помещении
С ремонтом — готово к использованию
Этаж: 2 / 2
Назначение: универсальное — торговля, услуги, офис, студия, шоурум, пункт выдачи, салон, учебный центр и др.
Описание объекта
В аренду предлагается просторное коммерческое помещение площадью 76 м², расположенное на втором этаже современного торгового комплекса в центре г.п. Назия.
Помещение с качественным ремонтом, полностью готово к въезду арендатора и не требует дополнительных вложений.
Есть санузел, удобная планировка и все необходимые коммуникации.
Выделенная электрическая мощность — 20 кВт, чего достаточно для большинства видов бизнеса.
Помещение светлое, тёплое, с окнами, подходит под любой формат деятельности — торговый зал, офис, салон красоты, фитнес- или йога-студию, пункт выдачи, мастерскую, детский центр, медкабинет и др.
Инфраструктура и окружение
Объект расположен в торговом комплексе на проспекте Комсомольском, в центральной части посёлка Назия (Кировский район Ленинградской области).
Комплекс находится в окружении жилой застройки, что обеспечивает устойчивый пешеходный поток и удобный подъезд на автомобиле.
Рядом:
• продуктовые магазины, аптеки, салоны связи;
• остановки общественного транспорта;
• в пешей доступности — школы, детские сады, жилые дома.
До ж/д станции Назия — около 5 минут на автомобиле,
до трассы Кола — 15 минут, удобное сообщение с Кировском и Шлиссельбургом.
Преимущества помещения
• Готовое помещение с ремонтом
• Санузел внутри
• Оптимальная мощность — 20 кВт
• Второй этаж — тёплое, светлое пространство
• Универсальное назначение
• Торговый комплекс в центре посёлка
• Удобная транспортная доступность
Контакты
Для уточнения условий аренды и записи на просмотр:
Просмотры — по предварительной договоренности.
| Сведения о недвижимости | |
|---|---|
| ID | 2868 |
| Коммунальные услуги включены | Нет |
| Возможность написать сообщение | Да |
| Сумма залога, руб | 42000 |
| Отчетные документы | Есть |
| Тип здания | Торговый центр |
| Санузел | Совмещенный |
| Тип парковки | На улице |
| Вход cian (avito) | Общий с улицы |
| Тип аренды | Прямая |
| Тип сделки авито коммерческая | Продажа |
| Ремонт | Евро |
| Планировка cian | Открытая |
| Помещение занято | Нет |
| Планировка avito | Открытая |
| Отделка помещения коммерческая | Чистовая |
| Право собственности | Собственник |
| Залог (avito) | 1 месяц |
| Способ связи avito | По телефону и в сообщениях |
| Тип недвижимости (Гипернн) | Помещение |
| Состояние cian | Дизайнерский ремонт |
| Ремонт коммерческая | евро |
| Тип отопления cian | Автономное газовое |
| Тип дома cian | Щитовой |
| Вариант задания цены (avito) - Аренда | в месяц |
| Дополнительно о парковке avito | Бесплатная |
| Статус готовности | В эксплуатации |
| Удаленность от дороги (авито) | Первая линия |
| Мощность электросети, в кВт | 20 |
| Тип коммерческой | Помещение свободного назначения |
| Площадь, кв.м. | 76,1 |
| Этаж | 2 |
| Этажность | 2 |
| Стоимость | 42 000 руб. |












